- Price
$842,585 PRE-GST
Sold- Address
- Viewing by appointment only
- 434 Arrowleaf Rise
- 2 Bedrooms
- 2.5 Bathrooms
- 1,623 sqft
- Dual primary suites w/ensuite & walk-in closet
- Bright open concept main floor w/large pantry
- Double-attached garage
- Rear patio w/privacy screen
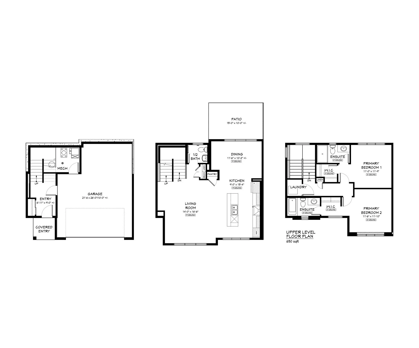
Meet your next chapter. The Matese at 434 Arrowleaf Rise offers 1,623 sq ft of smart, stylish living across three levels in a walk-up duplex designed for real life.
The main level opens into a bright open-concept layout where the living room, kitchen, and dining area connect effortlessly, with a pantry and half bath rounding out the space. A rear patio with privacy screen gives you a private outdoor retreat just steps from your kitchen. Upstairs, two spacious primary bedrooms each come with their own ensuite and walk-in closet, plus a centrally located laundry room for added convenience. The lower level features a covered entry and double attached garage, keeping arrivals and departures effortless.
Fully landscaped and move-in ready with no HOA or strata fees.